





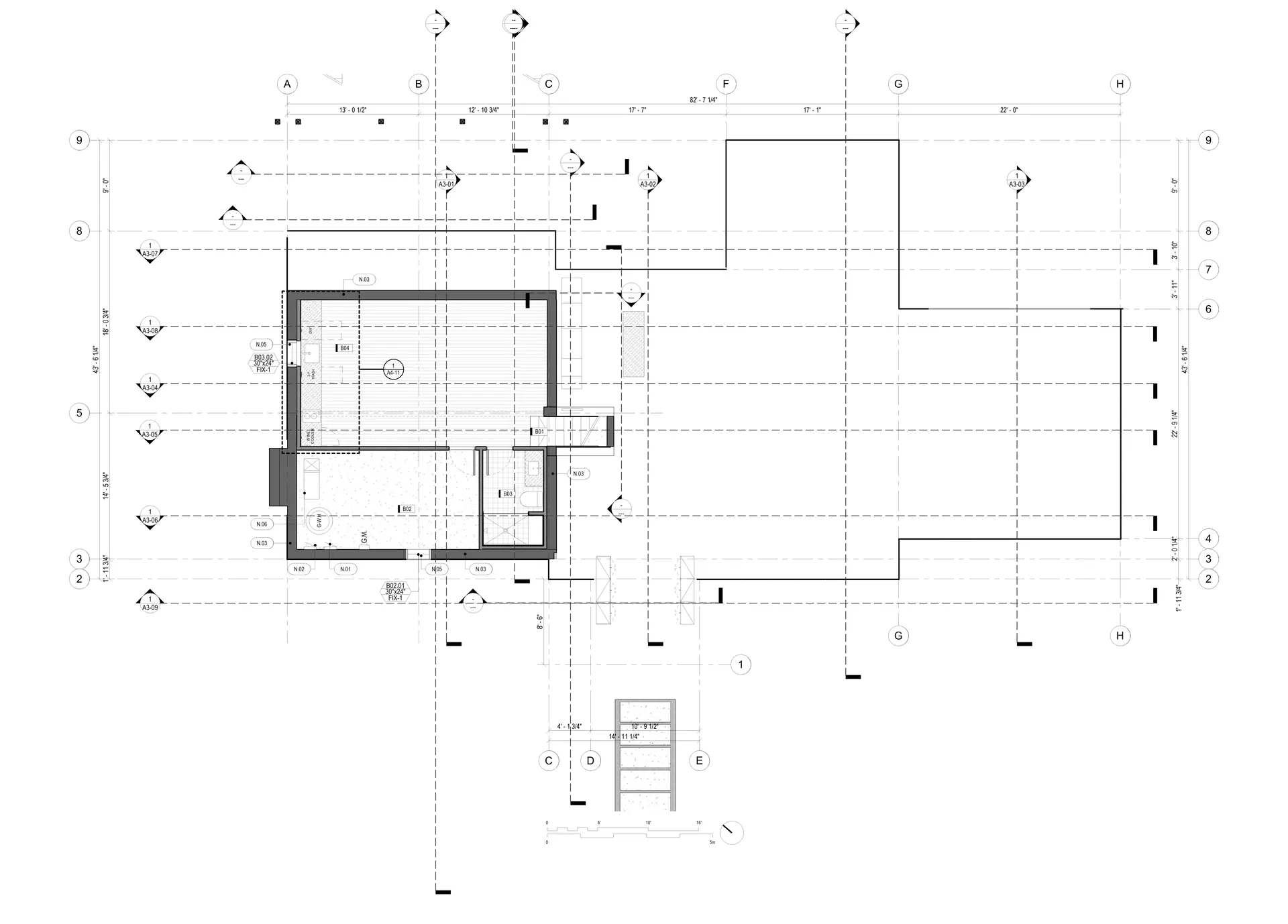
7007 Churchill Rd — Residential
BIM Management
Role: BIM Manager & Architect. Modeling, coordination, documentation, and BOQs.
Read case study





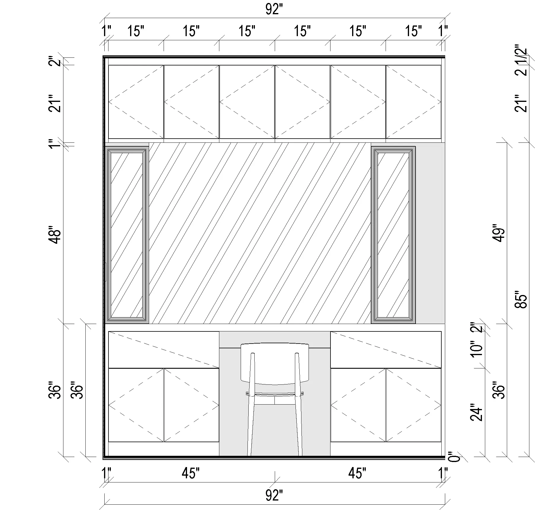
BIM Management
Role: BIM Manager & Architect. Modeling, coordination, documentation, and BOQs.
Read case studyBIM Management
Role: BIM Manager & Architect. Architectural modeling, clash resolution, and construction docs.
Read case study





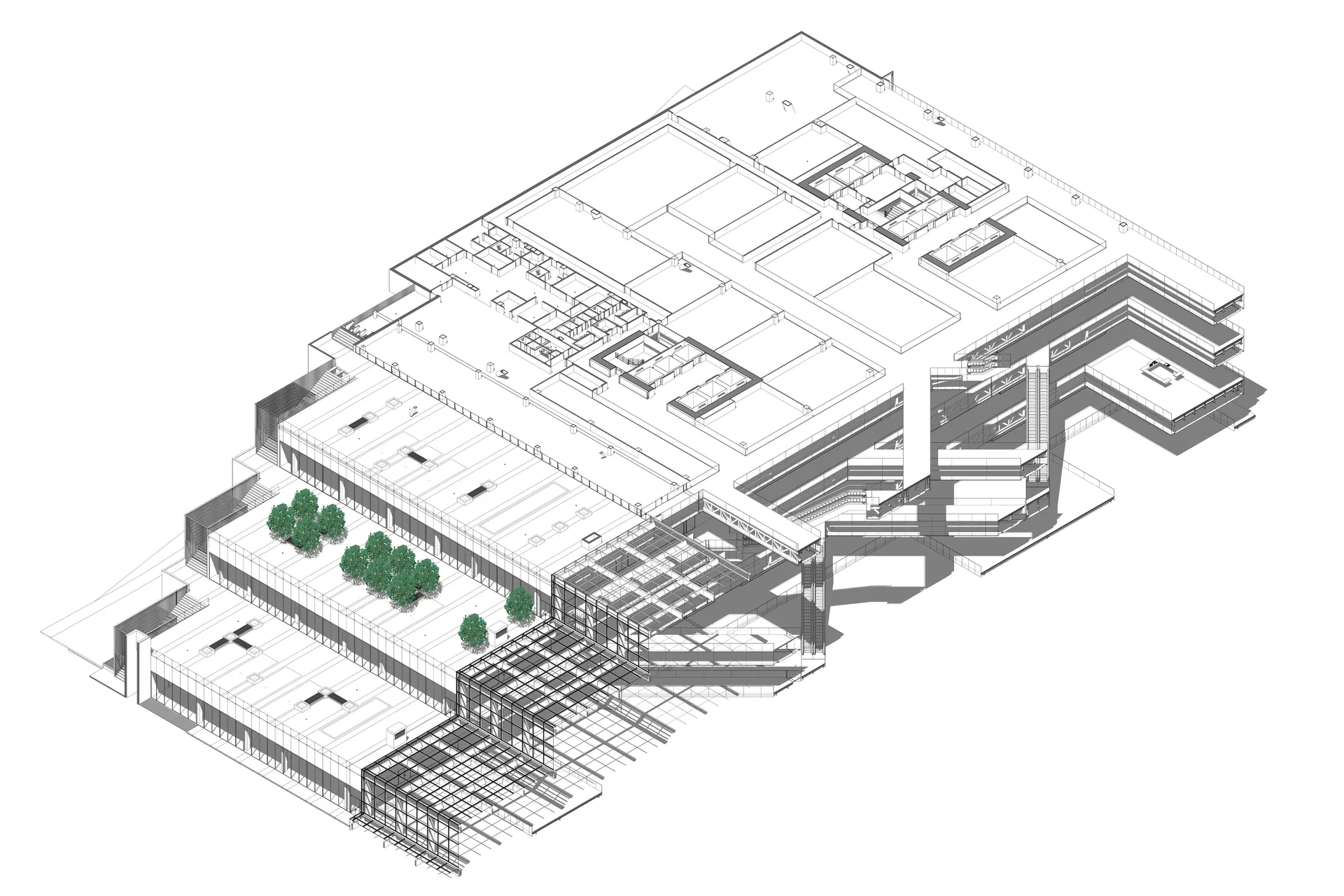
BIM Management
Role: BIM Manager & Architect. Federated models, QA/QC, and deliverables.
Read case study





BIM Management
Role: BIM Manager & Architect. Design support, coordination, and scheduling.
Read case study





BIM Management
Role: BIM Manager & Architect. Full architectural model, coordination, and client visuals.
Read case study





BIM Management
Role: BIM Manager. Founded the BIM process; led coordination and documentation for a major mixed-use complex.
Read case study





BIM Management
BEP, coordination, clash detection, QA/LOD compliance, documentation, and training.
Read case study