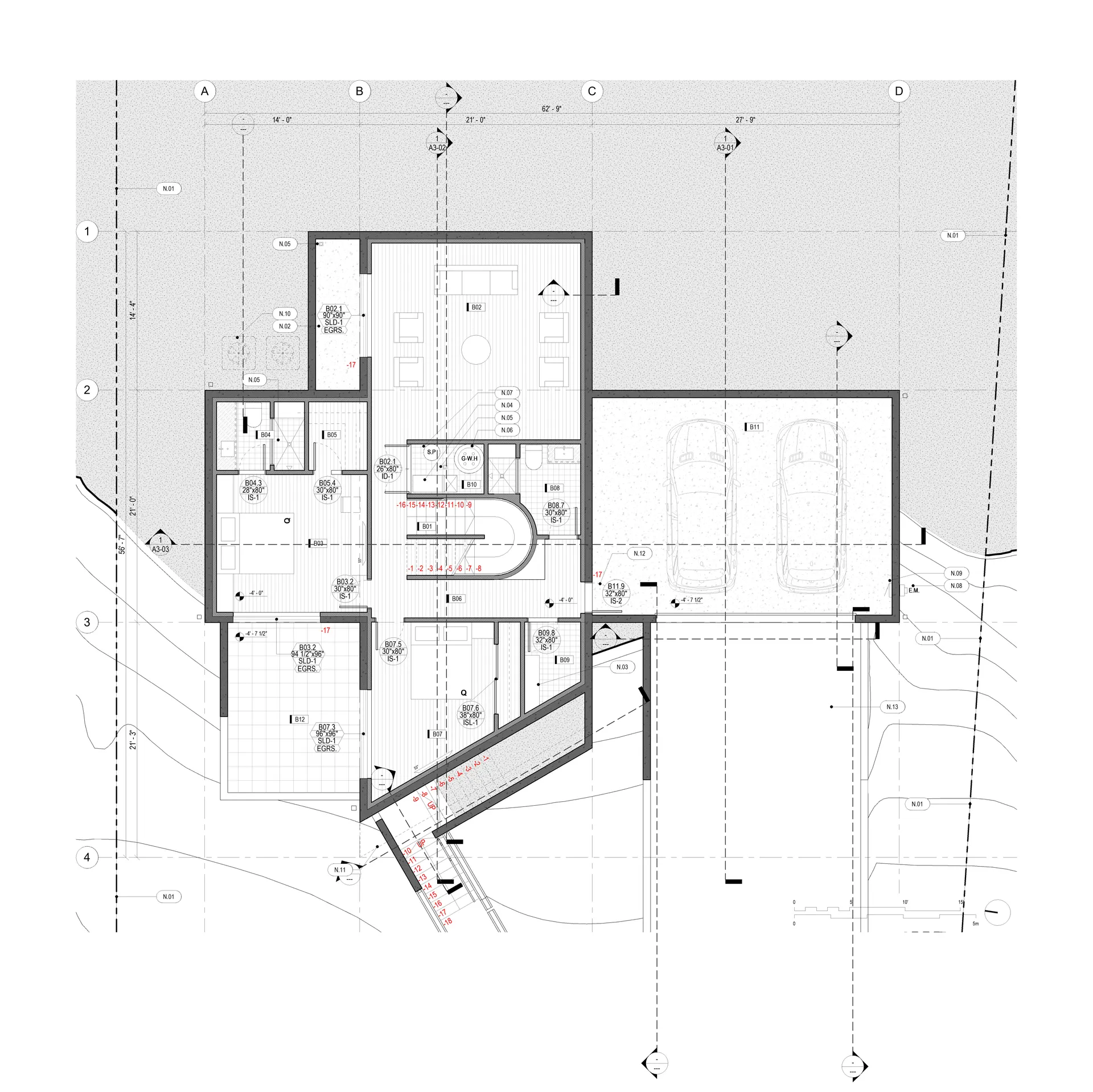
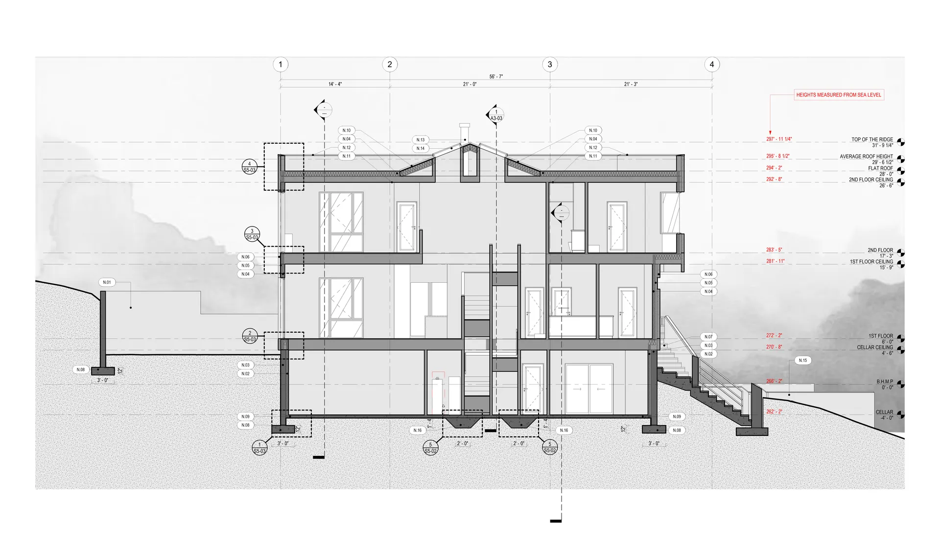
6530 E Halbert Rd — Residential
Role: BIM Manager & Architect — Noor Architecture
Custom home with modern detailing. I built and maintained the architectural model, aligned penetrations and structure, and issued coordinated plan/elevation/section sets and schedules. Constructed imagery was compared against the model during as‑built updates.
